Proposed Floor plans

These two options engineered for a projected annual rental income of up to $200,000, offering a balanced portfolio of units designed to meet the high demand for modern urban living

6 Unit Concept

8 Unit Concept

Retail Anchor: A 960 SF ground-floor retail space serves as a steady commercial anchor, ideal for Broadway's foot traffic.

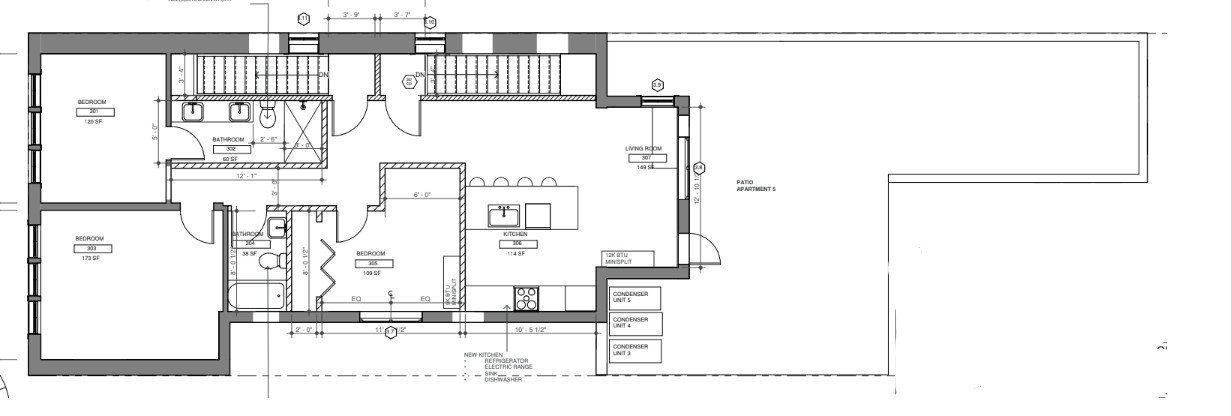
Strategic Layout: The upper floors are optimized for efficiency and comfort, with the 2nd and 3rd floors featuring a mix of front-facing 1-bedroom units and rear 2-bedroom/2-bathroom layouts.

Added Value: The project includes designated parking, generating additional monthly revenue and enhancing tenant appeal.

Zoned T5 Main Street, 350 Broadway is primed for Kingston’s new era. Benefit from the city’s most permissive form-based code: No parking minimums, up to 5 stories of height, and unlimited residential density

Residential Mixed-use: Both plans includes a range of living options, including three studios, two 1-bedroom apartments, and two spacious 2-bedroom/2-bathroom units.

Your Questions, Answered

  • The vacant site is located at 350 Broadway in Kingston New York

  • TAX MAP NO. 56.26.11.49.100

  • T5MS

    T5MS as the "Urban Core" where the city wants to see the most growth, the tallest buildings, and the most foot traffic. Allows up to 6 Stories!

  • The Existing Foundation is over 2500 SF (90’ x 28’)

  • It’s a 15,000+ sq. ft. blank canvas in Kingston’s most flexible T5MS zone. We’ve preserved the historic envelope so you can focus on its pure development potential.