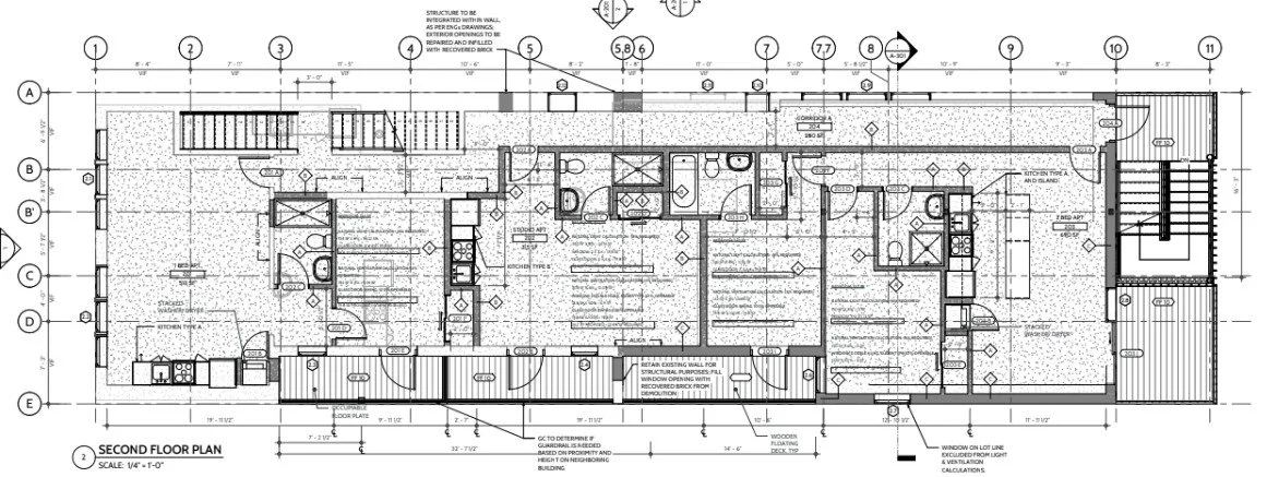
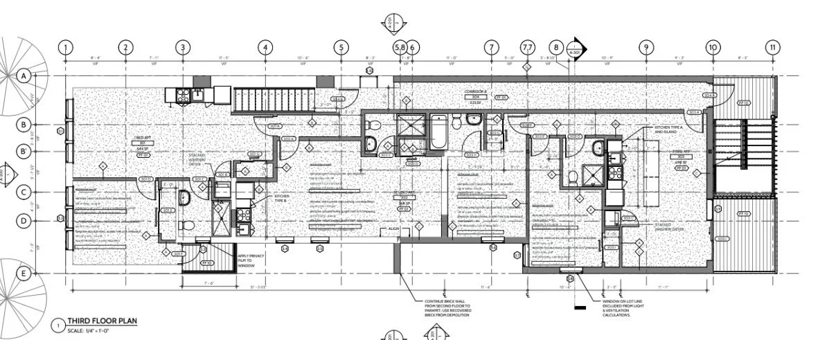
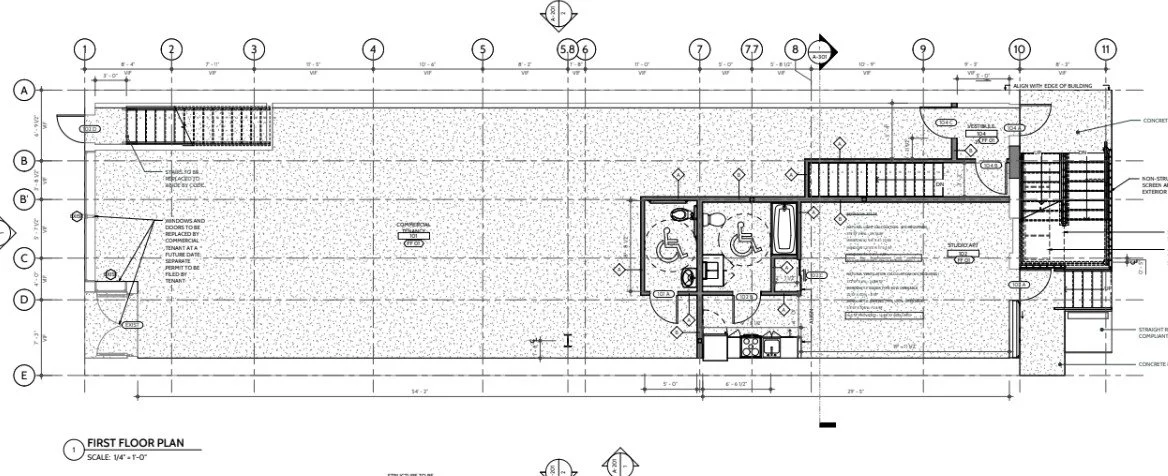
Floor plans

This configuration is engineered for a projected monthly rental income of over $17,000, offering a balanced portfolio of units designed to meet the high demand for modern urban living

Residential Mix: The plan includes a range of living options, including three studios, two 1-bedroom apartments, and two spacious 2-bedroom/2-bathroom units.

Retail Anchor: A 960 SF ground-floor retail space serves as a steady commercial anchor, ideal for Broadway's foot traffic.

  • Strategic Layout: The upper floors are optimized for efficiency and comfort, with the 2nd and 3rd floors featuring a mix of front-facing 1-bedroom units and rear 2-bedroom/2-bathroom layouts.

  • Added Value: The project includes designated parking, generating additional monthly revenue and enhancing tenant appeal.

Shovel Ready & pre-approved federal grant of up to $225,000 in immediate funds towards construction costs*